5SLDK in Higashimen, Imafukucho, Matsuura City, Nagasaki
Click any image to view full gallery
Last Updated: 4/16/2026
First Seen: 2/5/2026
Location
nagasaki
長崎県松浦市今福町東免495-3
Year Built
1994
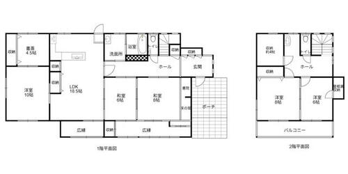
Building Area
188.42㎡
(2,028ft²)
Land Area
1577.8㎡
(16,983ft²)
Nearest Station
6 minutes walk from matsuura railway/imafuku station
Price per ㎡
¥131,621
($829/㎡)
Property Sources
Data aggregated from multiple listing providers. Links and availability subject to change. Expand to see all source links.
Search for any destination to see transit, driving, and walking routes from this property.
Approximate Location
The location of the property displayed on the map indicates that it is located at a nearby address, and may differ from the actual location of the property.
Can you actually buy this nagasaki home as a foreigner, 100% remote, without speaking Japanese?
Yes! The first step is performing a "Feasibility Check". That's where the AkiyaHub team will check out this exact property for you, then outline your 90 day plan, and handle the first agent outreach for you.
Bonus value: $379 included (membership $300 + inquiry $79).
- Personalized Feasibility Check Video Call - get a custom plan, feedback, and assessment (value $499)
- 1 year AkiyaHub platform access (value $300)
- 1 basic property inquiry / agent outreach for this property (value $79)
What happens in the Feasibility Check Video Call?+
During your Feasibility Check, the AkiyaHub team gives you a clear verdict, a plan, and immediate action steps for this property AND your plan in Japan.
What you'll discuss
- Feasibility verdict on this listing: pass or fail with their expert opinion based on your goals and needs. If you want to proceed, you can choose to use your credit for a basic property inquiry to begin the agent outreach for this property.
- Your 90 day Remote Purchase Plan: They will discuss with you a step by step timeline, who does what, taxes and fees, and how renovation works in Japan if relevant. Clear experience based information, no guesswork.
- Path to first offer: the fastest route from today to an accepted offer for your situation, including contingencies they will structure to protect you as a foreign buyer.
What's included
- First agent outreach handled for you: If you move forward with this or another property, they contact the listing agent in Japanese, confirm details, and compile the 1 page inquiry report. (3-4 days based on seller/agent availability)
- 1 year AkiyaHub membership and your first property inquiry credit already credited to your account, so there are no extra steps on your end other than booking your call.
What is the Basic Property Inquiry?+
Get a fast, definitive "Can I actually buy THIS place?" answer without a single Japanese message.
What they do
- Contact the listing agent in Japanese, confirm real availability, price, and seller openness to foreign or remote buyers.
- Establish you as a serious, qualified buyer using their reputation, cultural know how, and agent relationships, so you do not get ignored.
What you get back
- Personalized pass or fail verdict for this properties feasibility given what you've shared with the AkiyaHub team.
- Consolidated into a 1 Page property feasibility print-out - It shows availability, confirmed price, and the full address if seller is willing to share it.
- Next steps: If it's a pass, they prep the path to comprehensive due diligence. If it's a fail, they give you a free property recommendation and save it to your Akiya list so you keep momentum and can submit a new inquiry when ready.
Why this matters
Many agents hesitate with foreign buyers due to language, perceived risk, and an unfamiliar process. AkiyaHub helps bridge that gap so your inquiry gets answered and advanced instead of ignored.
Who is AkiyaHub?+
Our trusted partner AkiyaHub packs 200+ hours of brutal, on-the-ground work into a proven system that makes buying a home in Japan not just possible, but inevitable.
They Speak Japanese So You Don't Have To:
Real due diligence, contracts, negotiations, paperwork... they handle it all. No language barriers.
A Proven Blueprint:
Follow the exact, battle-tested process hundreds of buyers have used to succeed. 100% Remote & No Japanese Required.
Join a Community:
Meet the 15,000+ other community members walking the same path as you. You'll find encouragement, tips, guides, and new friends along the way.
What does AkiyaHub membership include?+
Community and Guidance
- Join a global community of 15,000+ members buying in Japan.
- Ask questions and get answers from experts and peers.
- Learn fast with step by step guides and real member stories.
Property Search Tools UNLIMITED USAGE
- Property Feed with AI style recommendations.
- Quick Search for fast area snapshots.
- Map Search with Property Radar scoring.
Calculators and Wizards
- Costs and fees calculator for taxes, stamps, registration, and brokerage.
- Visa Wizard to map residency paths for a move to Japan.
Language and Support
- 100 percent English and 100 percent remote friendly.
- Bilingual in Japan team to handle calls, documents, and updates.
Ways to Work With Their Team
- Done-with-you Pay-as-you-go services for inquiries, due diligence, viewings, offers, contracts, and closing support.
- Done-for-you programs for vacation and investment paths with a flat fee, no extra or hidden charges.
After payment, you'll need to complete a short form to help us prepare for your call and then select your video call time.




































